Trilocale in vendita

Belmonte Calabro, Via Garibaldi
€ 63.000
3 locali 3 locali
91 Mq 91 Mq
2 bagni 2 bagni

Trilocale in vendita

Belmonte Calabro, Via Garibaldi

Descrizione annuncio

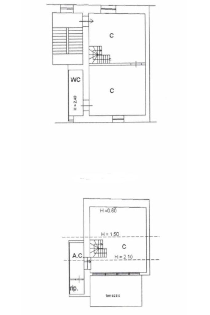
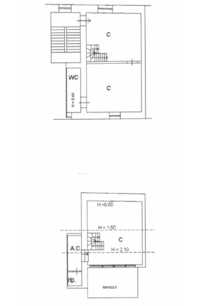
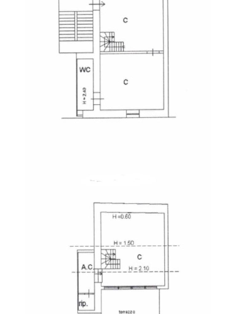
Appartamento su due livelli con Terrazza Panoramica- Centro Storico

Nel suggestivo borgo di Belmonte Calabro, caratteristico paese della costa tirrenica calabrese, proponiamo in vendita un grazioso appartamento con terrazza panoramica, ideale per chi desidera vivere in un contesto tranquillo e ricco di storia, a pochi minuti dal mare.

L’immobile, disposto su due livelli (secondo e terzo piano), si presenta in buono stato di manutenzione, pronto per essere abitato, ha una superficie complessiva di circa 91 mq e gode di doppia esposizione, che garantisce luminosità e buona ventilazione naturale.

Al secondo piano troviamo una spaziosa camera matrimoniale con bagno ed un accogliente salotto, dal quale, tramite una scala interna, si accede al livello superiore. Il terzo piano ospita un pratico angolo cottura, un bagno di servizio e un luminoso soggiorno con accesso diretto a un delizioso terrazzino panoramico, uno spazio ideale per godersi momenti di relax all’aperto, pranzi e cene con vista, o semplicemente per ammirare il paesaggio circostante e lasciarsi conquistare dalla quiete del borgo.

La disposizione interna rende l’immobile particolarmente versatile, adatto sia come abitazione principale per chi ama la tranquillità dei centri storici, sia come casa vacanze. Inoltre, rappresenta un’interessante opportunità di investimento, grazie alla crescente attrattività turistica della zona e alla possibilità di inserirlo nel circuito degli affitti brevi.

L’edificio è perfettamente integrato nel tessuto del centro storico, in posizione centrale e strategica. Immerso nell’atmosfera autentica del borgo, consente di raggiungere comodamente a piedi tutti i principali servizi ed in pochi minuti di auto, il mare, offrendo così un perfetto equilibrio tra relax, natura e praticità quotidiana.

Una soluzione unica per chi è alla ricerca di una proprietà caratteristica, con spazi ben distribuiti e un incantevole spazio esterno panoramico.

Per chi avesse intenzione di acquistarlo, attraverso l'ottenimento di un mutuo, è possibile, su richiesta, ricevere una consulenza gratuita, grazie ai nostri professionisti della Kiron (Società di Mediazione Creditizia del Gruppo Tecnocasa), i quali offrono servizi e prodotti su misura per ogni tipo di necessità finanziaria.

Mostra tutto

Nelle vicinanze

Trasporto pubblico Trasporto pubblico
Belmonte Calabro
Belmonte Calabro
1,4 Km
Bar Bar
Antico Caffè Marano
30 m
Bar dello Sport
110 m
Caffè Sicoli
2,8 Km
Ristoranti Ristoranti
Sapori di Casa da Amerigo
1,3 Km
RistorArte Corallo Nero
1,4 Km
Mostra tutto

Caratteristiche

Rif.:
61199230
Piano:
2 di 4 (Piano su più livelli)
Terrazzi:
1
Camere da letto:
1
Arredamento:
Assente
Condizionamento:
Assente
Mostra tutto
Prezzo Prezzo
€ 63.000
Rata mutuo Rata mutuo
€ 299 / mese
Spese annue Spese annue
€ 0
Proponi il tuo prezzoProponi il tuo prezzo

Classe Energetica

G
G
G
G
G
G
G
G
G
EP invernale del fabbricato:
EP estiva del fabbricato:
Anno di costruzione:
1940
Riscaldamento:
Autonomo
Tipo impianto:
A stufa
Tipo alimentazione:
Altro

Ti interessa visionare l'immobile?

Fissa un appuntamento  Fissa un appuntamento

Richiedi informazioni

Clicca su Leggi per aprire l'informativa
* Questi campi sono obbligatori

Calcola il tuo mutuo

Semplice e senza impegno
Anticipo

( % )
Mutuo

( % )

pochi semplici passi

inserisci i tuoi dati
Questionario completato
Grazie per aver richiesto un appuntamento senza impegno con un nostro Consulente del Credito e Assicurativo.

Hai inserito correttamente tutti i dati necessari e a breve riceverai una e-mail con un link da convalidare per inviare i tuoi dati.
Affiliato
Studio Immobiliare Paola D.I.
Via Nazionale, 63 87027 Paola (CS)

Il nostro staff


  • Guerino Martino
    Affiliato
Via Nazionale, 63 87027 Paola (CS)
Zona: Paola
Mostra su mappa
Orari: dal lunedì al venerdì 9:00 - 13:00/15:30 - 19:30; sabato 9:00 -13:00; sabato pomeriggio su appuntamento.
Affiliato
Studio Immobiliare Paola D.I.
Via Nazionale, 63 87027 Paola (CS)

2026 Tecnocasa Franchising S.p.A. - P. IVA 08365160152 - Via Monte Bianco 60/A 20089 Rozzano (MI). Ogni agenzia ha un proprio titolare ed è autonoma. Privacy policy | Policy utilizzo | Cookie policy