Quadrilocale in vendita

Paola, S.da 107 Silana Crotonese - Castagnelle Secondo
€ 48.000
4 locali 4 locali
107 Mq 107 Mq
1 bagno 1 bagno

Quadrilocale in vendita

Paola, S.da 107 Silana Crotonese - Castagnelle Secondo

Descrizione annuncio

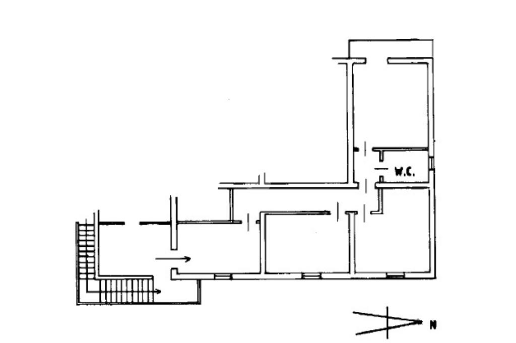
Appartamento panoramico- zona periferica

Proponiamo in vendita un appartamento panoramico situato al primo ed ultimo piano di una piccola abitazione indipendente, completamente recintata e accessibile tramite cancello privato.

L’immobile gode di un’esposizione luminosa e di una splendida vista mare aperta sul paesaggio circostante, ideale per chi desidera vivere in un contesto tranquillo e immerso nel verde.

La proprietà si compone di una cucina abitabile, tre ampie camere da letto ed un bagno finestrato con doccia. Gli ambienti interni offrono buone possibilità di personalizzazione grazie alla disposizione semplice e funzionale degli spazi.

L’appartamento si presenta da ristrutturare, caratteristica che permette di adattarlo completamente alle proprie esigenze e gusti personali, con la possibilità di valorizzare al meglio gli ambienti e la splendida vista panoramica.

La zona è periferica ma ben collegata: garantisce tranquillità e privacy, restando comunque a pochi chilometri dal centro e dai principali servizi.

Una soluzione ideale per chi cerca un’abitazione comoda, con ampi spazi e potenzialità, in un contesto sereno e riservato.

Per chi avesse intenzione di acquistarlo, attraverso l'ottenimento di un mutuo, è possibile, su richiesta, ricevere una consulenza gratuita, grazie ai nostri professionisti della Kiron (Società di Mediazione Creditizia del Gruppo Tecnocasa), i quali offrono servizi e prodotti su misura per ogni tipo di necessità finanziaria.

Mostra tutto

Nelle vicinanze

Trasporto pubblico Trasporto pubblico
stazione di Paola
stazione di Paola
2,1 Km
PAOLA - SS18 PIAZZOLA PETRULLA
PAOLA - SS18 PIAZZOLA PETRULLA
860 m
Scuole Scuole
Scuole
1,4 Km
Istituto Tecnico "Pizzini"
1,9 Km
Istituto SS Vergine di Pompei e S. Francesco di Paola
1,9 Km
liceo scientifico
2,3 Km
Ospedali Ospedali
San Francesco di Paola
1,3 Km
Supermercati Supermercati
Market
2,2 Km
Negozi Negozi
Cheri Sposi
1,6 Km
Maffei Abbigliamento
1,6 Km
Ristoranti Ristoranti
Ristorante Pizzeria Bar Petrulla
860 m
Ristoranti
1,5 Km
pizzeria pulcinella
1,9 Km
krystal
2,5 Km
Mostra tutto

Caratteristiche

Rif.:
61150368
Piano:
1 di 2 (Piano basso)
Camere da letto:
3
Arredamento:
Assente
Condizionamento:
Assente
Ascensore:
No
Mostra tutto
Prezzo Prezzo
€ 48.000
Rata mutuo Rata mutuo
€ 227 / mese
Spese annue Spese annue
€ 0
Proponi il tuo prezzoProponi il tuo prezzo

Classe Energetica

G
G
G
G
G
G
G
G
G
EP invernale del fabbricato:
EP estiva del fabbricato:
Anno di costruzione:
1990
Riscaldamento:
Autonomo
Tipo impianto:
A stufa
Tipo alimentazione:
Altro

Ti interessa visionare l'immobile?

Fissa un appuntamento  Fissa un appuntamento

Richiedi informazioni

Clicca su Leggi per aprire l'informativa
* Questi campi sono obbligatori

Calcola il tuo mutuo

Semplice e senza impegno
Anticipo

( % )
Mutuo

( % )

pochi semplici passi

inserisci i tuoi dati
Questionario completato
Grazie per aver richiesto un appuntamento senza impegno con un nostro Consulente del Credito e Assicurativo.

Hai inserito correttamente tutti i dati necessari e a breve riceverai una e-mail con un link da convalidare per inviare i tuoi dati.
Affiliato
Studio Immobiliare Paola D.I.
Via Nazionale, 63 87027 Paola (CS)

Il nostro staff


  • Guerino Martino
    Affiliato
Via Nazionale, 63 87027 Paola (CS)
Zona: Paola
Mostra su mappa
Orari: dal lunedì al venerdì 9:00 - 13:00/15:30 - 19:30; sabato 9:00 -13:00; sabato pomeriggio su appuntamento.
Affiliato
Studio Immobiliare Paola D.I.
Via Nazionale, 63 87027 Paola (CS)

2025 Tecnocasa Franchising S.p.A. - P. IVA 08365160152 - Via Monte Bianco 60/A 20089 Rozzano (MI). Ogni agenzia ha un proprio titolare ed è autonoma. Privacy policy | Policy utilizzo | Cookie policy